- Immobilien
- Steiermark
- Kreis Weiz
- Markt Hartmannsdorf
- EXCLUSIV ARCHITEKTENHAUS– KLARHEIT MIT GEFÜHL Architektur, die Sie ausdrückt!
Diese Seite wurde ausgedruckt von:
https://www.ohne-makler.at/immobilie/393777/
EXCLUSIV ARCHITEKTENHAUS– KLARHEIT MIT GEFÜHL Architektur, die Sie ausdrückt!
SONNIGES BAUGRUNDSTÜCK EXKLUSIV NUR FÜR DANWOOD-HAUSBAU, 8311 Markt Hartmannsdorf – Steiermark, ÖsterreichEffizienz trifft emotionale Intelligenz!
Vision by Danwood steht für Architektur mit Haltung. Sie ist konzipiert für Menschen, die Verantwortung tragen und Werte sichtbar machen.
Jedes Haus entsteht nach einem architektonisch anspruchsvollen Konzept: klar in der Sprache, präzise in der Ausführung, kompromisslos in der Qualität.
Für Führungspersönlichkeiten, die nicht nur bauen, sondern gestalten – mit Weitblick, Stil und Substanz.
Interessieren Sie sich für dieses Haus?
|
Objekt-Nr
|
OM-393777
|
|
Objektart
|
Haus
|
|
Objekttyp
|
Stadthaus
|
|
Aktuelle Nutzung
|
Nicht vermietet
|
|
Übernahme ab
|
Nach Vereinbarung
|
Kaufpreis & Nebenkosten
|
Kaufpreis
|
752.300 €
|
Einzelheiten
|
Zustand
|
Erstbezug
|
|
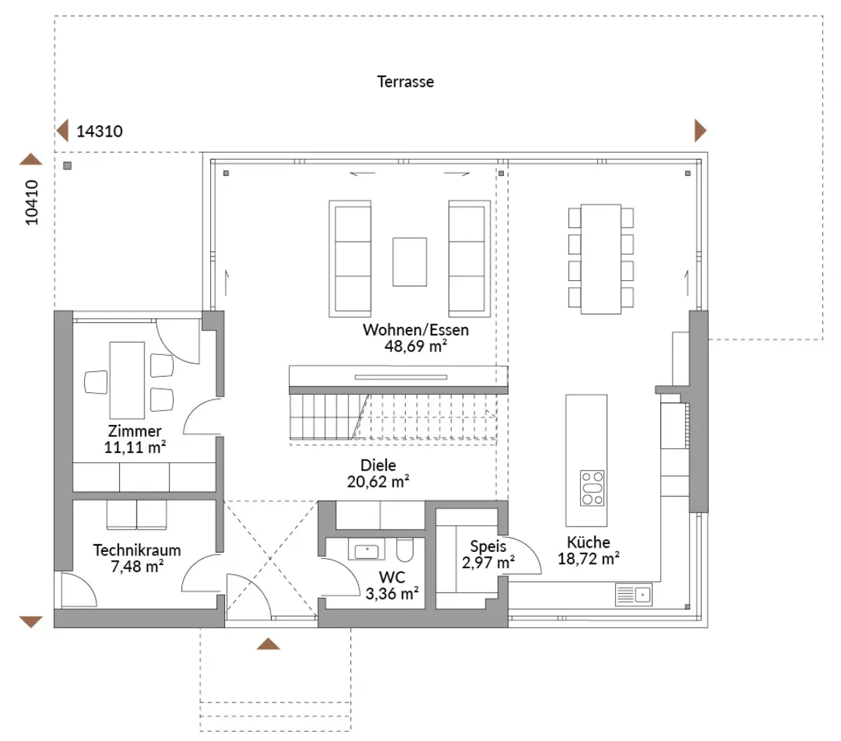
Anzahl Etagen
|
2
|
|
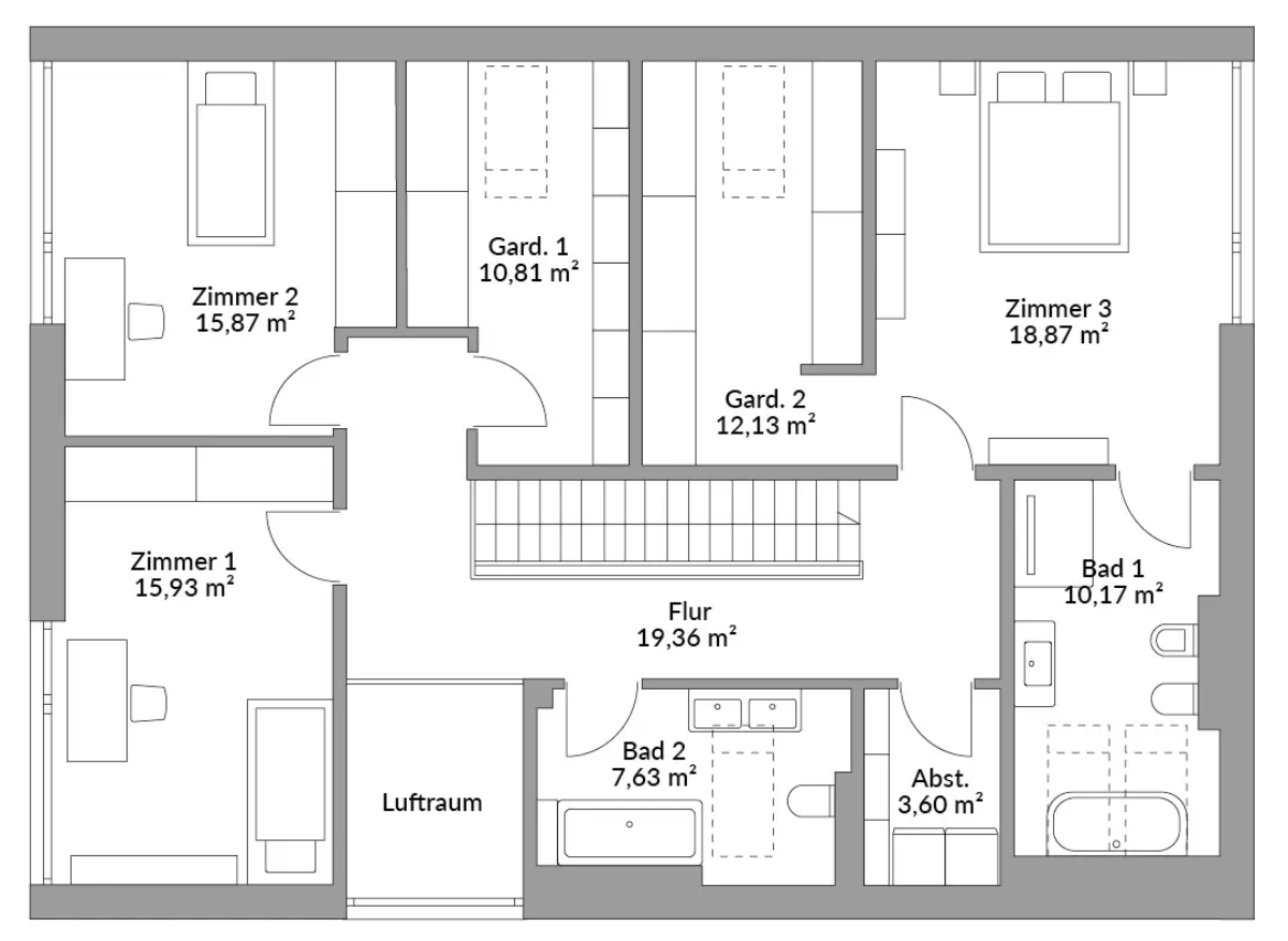
Badezimmer (Anzahl)
|
2
|
|
Schlafzimmer (Anzahl)
|
4
|
|
Bodenbeläge
|
Parkett, Teppichboden, Fliesen, Vinyl / PVC
|
|
Heizung
|
Fußbodenheizung
|
|
Baujahr
|
2026
|
|
Ausstattung
|
Gäste-WC
|
Angaben zur Ausstattung
VISION Schlüsselfertig Bau- und Leistungsbeschreibung – Häuser auf Bodenplatte!
Leistungsumfang
RAUMHÖHEN: EG 3,05m DG 2,67m
Technik
Technik, die das Wohnen leichter macht Das Technikpaket Today 3BL kombiniert moderne Wärmepumpentechnik mit einem großzügigen Warmwasserspeicher und einer intelligenten Lüftungsanlage. Das Ergebnis: ein Zuhause, das sich automatisch um ein angenehmes Raumklima kümmert – warm im Winter, frisch im Sommer, effizient das ganze Jahr. Die Fußbodenheizung sorgt für behagliche Wärme in jedem Raum, während die zentrale Lüftung mit Wärmerückgewinnung Energie spart und gleichzeitig für konstant frische Luft sorgt. Ein Technikpaket, das Komfort, Effizienz und Zukunftssicherheit perfekt verbindet.
Elektrische Rollläden:
Die Rollläden von DANWOOD sind die perfekte Ergänzung zur energieeffizienten DANWOOD Bauweise. Sie schützen im Sommer vor Hitze, halten im Winter die Wärme im Haus und sorgen jederzeit für Privatsphäre und Sicherheit. Mit elektrischer Bedienung oder smarter Steuerung lassen sie sich bequem und intuitiv nutzen – ein Komfortgewinn, den man jeden Tag spürt. Kurz gesagt Bei DANWOOD sind Rollläden optional, aber technisch perfekt integrierbar – elektrisch, langlebig und ideal für moderne Architektur.
Sanitärausstattung:
Dusche – sicher, bequem und ideal für Kinder wie Erwachsene • Wandhängendes WC – leicht zu reinigen, hygienisch, familienfreundlich • Waschtisch • Hochwertige Armaturen – langlebig, leicht zu bedienen, temperaturstabil • Optional je nach Modell: • Badewanne – perfekt für Kinder, Entspannung oder gemeinsame Abendrituale • Doppelwaschtisch – kein Gedränge am Morgen • Unterputz Armaturen – sicher, elegant, leicht zu reinigen Alles ist darauf ausgelegt, den Alltag zu erleichtern und gleichzeitig lange schön zu bleiben.
Malerarbeiten:
Wände & Decken – fertig für den Einzug. Alle Innenwände und Decken werden im Standard schlüsselfertig ausgeführt. Das bedeutet: • Glatte, gespachtelte und geschliffene Oberflächen • Weiße Endbeschichtung in hochwertiger Dispersionsfarbe • Saubere, gleichmäßige Optik in allen Wohnräumen. DANWOOD liefert bereits die fertige Oberfläche • Keine sichtbaren Fugen oder Übergänge dank industrieller Präzision Damit ist das Haus sofort bewohnbar, ohne dass zusätzliche Malerarbeiten notwendig sind.
Vinyl/Laminat/Fliesen:
Wohn und Schlafräume – warm, robust, einladend!
Alle Wohn und Schlafräume werden mit hochwertigen, pflegeleichten Bodenbelägen ausgestattet, die Wärme, Komfort und Alltagstauglichkeit verbinden. Standardausführung (modellabhängig): • Hochwertiger Design Vinylboden in Holzoptik • Strapazierfähig, leise, fußwarm • Ideal für Familien, Haustiere und tägliche Nutzung • Harmonische Farbwelten (Eiche hell, Eiche natur, Eiche grau – je nach Auswahl im Design Center Pinkafeld
Optional:
• Laminat in Premium‑Qualität
• Echtholzparkett (Aufpreis)
• Alternative Designlinien (Betonoptik, dunkle Holzoptik, warme Naturtöne)
Lage
Auf Ihrem Grundstück oder in...
Güssing: Ca. 2.600m² Lage vollkommen eben, . Grundstücksgrößen und Grundstückslagen frei wählbar. Größen von 500m² - 1500m²
Hier sind die Baugründe der Extraklasse! In bester Lage und mit einem atemberaubenden Blick auf die wunderschöne Burg Güssing!
Güssing bietet ein zukunftssicheres, leistbares und energieunabhängiges Leben im Grünen, was die Investition in eine Immobilie dort zu einer strategischen Wertanlage macht.
Warum Güssing
Energie-Pionier und Nachhaltigkeit:
Die Stadt ist energieautark und international anerkannt.
Hohe Abdeckung (über 85%) mit regionaler Biomasse-Fernwärme führt zu stabilen, günstigen Heizkosten.
Leistbare Immobilienpreise:
Die Preise sind noch deutlich günstiger als im österreichischen Durchschnitt, was den Traum vom Eigenheim mit großzügigen Grundstücken ermöglicht.
Starke Infrastruktur und Lebensqualität:
Als Bezirksvorort garantiert Güssing kurze Wege und beste Versorgung.
Geplante Großinvestitionen:
Neuer Bildungscampus und modernes Ärztezentrum (ab 2026).
Kulturelles Zentrum (Burg Güssing) und Nähe zu Thermen.
Die vollständige Eröffnung der S7 bringt erhebliche Vorteile für Güssing und seine Bewohner:
Schnellere Anbindung an Ballungszentren: Die Schnellstraße verkürzt die Fahrzeit zur A2 Süd Autobahn massiv, wodurch die Reisezeiten nach Graz und Wien deutlich reduziert werden.
Entlastung der Region: Sie leitet den Durchzugsverkehr, der zuvor stark belastete Ortschaften wie Fürstenfeld und Rudersdorf passierte, auf die neue Trasse um.
Wirtschaftliche Impulse: Die neue Anbindung, unter anderem über die Anschlussstelle bei Rudersdorf/Dobersdorf und die Nähe zur Anbindung Königsdorf, stärkt Güssing als Bezirksvorort und Wirtschaftsstandort durch verbesserte Erreichbarkeit und die Förderung neuer Gewerbeparks.
Wertstabilität und Entwicklungspotenzial:
Gezielte kommunale Investitionen in Infrastruktur, Stadtkernbelebung und das Technologiezentrum sichern die langfristige Wertstabilität der Immobilien.
Die kommunale Strategie zielt darauf ab, demografische Herausforderungen zu meistern und Güssing als attraktiven Wohn- und Wirtschaftsstandort zu etablieren.
Zielgruppe
Familien, die Zukunft, Sicherheit und Natur suchen, sowie alle, die Wert auf niedrige Energiekosten und ökologische Verantwortung legen.
Weitere Grundstücke in:
Grundstück, 8323 Kohldorf: Baugrundstück mit viel Sonne im oststeirischen Hügelland 15 km von Graz!
Größe 758 m² Kaufpreis € 66.000, --
Grundstück, 8323 Kohldorf: Sonniges Baugrundstück in Kohldorf 15 km östlich von Graz!
Größe 787 m² Kaufpreis € 69.000, --
Grundstück, 8311 Markt Hartmannsdorf: Voll aufgeschlossenes, sonniges Baugrundstück in Markt Hartmannsdorfv nähe Gleisdorf
Größe 920 m² Kaufpreis € 53.000, --
Grundstück, 9335 Lölling Graben: Baugrundstück mit traumhaftem Fernblick in der malerischen Kärntner Bergwelt
Größe 1001 m² Kaufpreis € 50.000, --
Grundstück, 8075 Hart bei Graz: Sonniges Grundstück vor den Toren von Graz
Größe 1980 m² Kaufpreis € 475.000, --
Grundstück in Stainz zu kaufen Sonniges Grundstück am Ortsrand von Stainz
Größe 825 m² Kaufpreis € 149.000,
Es besteht keine wirtschaftliche Verbindung zwischen dem Eigentümer des Grundstücks und dem Errichter des Hauses.
Lage-Check
Energie
|
Wesentlicher Energieträger
|
Luft-/Wasserwärme
|
Sonstiges
Hinweis: Alle Hauspreise gelten ab Oberkante Bodenplatte. Abbildungen können optionale Sonderausstattungen zeigen.
Makleranfragen unerwünscht!
Themenportale
Nachricht direkt an den Verkäufer senden
Fragen zu diesem Haus? Interesse zeigen oder einen Besichtigungstermin vereinbaren?
Klicken Sie hier, um dem Anbieter eine Nachricht zu senden:
Angebot von: DAN-WOOD Fertighaus Tatjana Wyss
Diese Seite wurde ausgedruckt von:
https://www.ohne-makler.at/immobilie/393777/